On January 16, 2019, the City of Ottawa’s Committee of Adjustment will be meeting and on the agenda are numerous items that will affect Ward 6-Stittsville. The items are as follows: 6130 Hazeldean, 6150 Hazeldean, 39 (39a) and 41 Cloverloft, 2 Cripple Creek and 11 (13) McCooeye Lane.
The owner of Hazeldean Gardens Retirement Residence Inc., at 6130 Hazeldean Road, wants to establish an Easement over a portion of their property for the purpose of allowing vehicular access to the neighbouring property at 6150 Hazeldean Road. The Owner requires the Consent of the Committee for Grant of Easement/Right of Way in order for this Easement to be put in place.

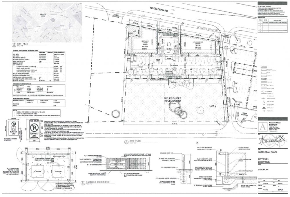
At 6150 Hazeldean Road, the owner, 2073945 Ontario Inc., has submitted plans to construct a one-storey restaurant and a two-storey medical facility on the subject property (the former Stittsville Flea Market), and has filed a Minor Variance Application that requires the Authority of the Committee for Minor Variances from the Zoning By-law as follows:
a) To permit 35 parking spaces for the restaurant based on parking space rate of 7.5 spaces per 100 square meters, whereas the Zoning By-law requires 46 parking spaces based on a rate of 10 parking spaces per 100 square metres for a restaurant in Area C on Schedule 1A.
b) To permit 27 parkings spaces for the medical facility based on a parking space rate of 3 spaces per 100 square meters, whereas the Zoning By-law requires 38 parking spaces based on a rate of 4 parking spaces per 100 square meters for a medical facility in Area C on Schedule 1A.
The owners of both properties are working in collaboration through the filed Consent application (File No. D08-01-18/B-00379) to receive approval for the required Easement. Both files for 6130 and 6150 Hazeldean Road will be heard at the same time.

PBC Sweetnam Holdings Inc., owners of 39 (39A) & 41 Cloverloft Court, 2 Cripple Creek Crescent are requesting a conveyance for portions of its property to the abutting landowners to the north at 39 and 41 Cloverloft Court. The Owner of 39 Cloverloft Court is then proposing to divide the two enlarged parcels into three new lots, each new lot is proposed to contain a detached dwelling with a secondary dwelling unit. Proposed lot line adjustments to facilitate the creation of these parcels have also been filed as applications because these newly created parcels will not be in conformity with the requirements of the Zoning By-law and therefore, Minor Variance Applications (D08-02-18/A-00404 to D08-02-18/A-00406) have been filed and will be heard concurrently with these applications.

And, over at 11 McCooeye Lane, landowners, Ron & Colleen Moore, have applied to subdivide their property into two separate parcels of land. The existing dwelling will remain on one parcel, with the second parcel remaining vacant for future residential development. Also, Minor Variance Applications D08-02-18/A-00421 and D08-02-18/A-00422 have been filed and will be heard concurrently with this application as the severed lots will not be in conformity with the requirements of the Zoning By-law.

The Committee of Adjustment (Panel 3) meets on January 16, 2019 at 9:00am in The Chamber at 101 Centrepointe Drive. You can attend this Public Hearing concerning these applications if you are an assessed owner of one of the neighbouring properties. The Committee asks that any presentations be limited to five minutes or less and any exceptions will be at the discretion of the Committee Chair. For more information regarding these applications go to www.ottawa.ca/cofa, then navigate to “Public Hearings” and select the Panel 3 agenda under the applicable Hearing date. The complete file is also available for the public to view at the Committee office (Ben Franklin Place, 101 Centrepointe Drive, 4th Floor) between the hours of 8:00 a.m. and 4:00 p.m. Monday to Friday; or you may contact the Committee of Adjustment directly at 613-580-2436.

